Tatiana KDGest Опубликовано: 21 февраля 2012 Жалоба Опубликовано: 21 февраля 2012 Поступил в продажу Пентхаус в новом жилом комплексе, в районе пляжа Поньенте,Бенидорм. 3 спальни,большой зал,две ванные, отдельная кухня,три большие террасы. Общая площадь 250м2. Возможно увеличение жилой площади за счет застекления террас. Прекрасный, панорамный вид на море.Возможен наземный или подземный паркинг. На территории 2 бассейна,теннисный корт, детская площадка и зеленые зоны.Спокойный район в 1 км от пляжа и 1,5 км от центра Бенидорма. Стоимость Пентхауса- 250 000 евро, цена снижена на 55%. Финансирование 90% от стоимости для не резидентов. 4 Цитата
fortik Опубликовано: 21 февраля 2012 Жалоба Опубликовано: 21 февраля 2012 а этаж какой ? а то я высоты боюсь 1 Цитата
Tatiana KDGest Опубликовано: 21 февраля 2012 Автор Жалоба Опубликовано: 21 февраля 2012 А этаж 19,последний. Цитата
fortik Опубликовано: 21 февраля 2012 Жалоба Опубликовано: 21 февраля 2012 вот этого я и боялся , ))) выше третьего для меня катастрофа , сразу вспоминаю что лифты иногда ломаются или свет отключают ))) 1 Цитата
fortik Опубликовано: 21 февраля 2012 Жалоба Опубликовано: 21 февраля 2012 не нашел отдельной темы Вашего агентства , попробую в этой , http://kdgest.com/real-estate/145-bungalo-v-sile-hay-tek-oriuela-kosta.html , это новострой ? заходи и живи ? и еще бы расположение поточнее и вообще было бы интереснее , если бы рекламируемые объекты имели адрес который можно было бы посмотреть на карте , если конечно это не военная тайна Цитата
Interesting Опубликовано: 21 февраля 2012 Жалоба Опубликовано: 21 февраля 2012 А жилой площади сколько? Цитата
Tatiana KDGest Опубликовано: 22 февраля 2012 Автор Жалоба Опубликовано: 22 февраля 2012 Добрый день! Да ,это новостройка, продается напрямую строительной компанией. Жилой площади 108м2 и 186м2 террасы. Расположение можете посмотреть в Google Maps, по адресу:Vía Parque, Benidorm и от этого месте наверх до гольф клуба. Квота жилищного комплекса составит, где-то 70-80 евро в месяц. Комплекс полностью закончен. Заранее отвечаю по резерву и покупке. Резерв 6 000 евро, кредит 225 000 евро, своих понадобится 42 500 евро( 10% стоимости+ 4% НДС+ 3% оформление). Ежемесячная квота по кредиту на 35 лет составит 962,79 евро в месяц. 1 Цитата
fortik Опубликовано: 22 февраля 2012 Жалоба Опубликовано: 22 февраля 2012 Количество спален: 2,3Жилая площадь:63,7+7,0 m2Стоимость:119000 € а это тогда что за цифры на том предложении ? то то смотрю какое то дармовое предложение , сразу понял , в чем то обман , но долго не мог понять в чем , Вы проверьте все предложения , а то вдруг цифры везде не совпадают , некрасиво получается Цитата
fortik Опубликовано: 22 февраля 2012 Жалоба Опубликовано: 22 февраля 2012 ой , посмотрел гугле и понял , что отвечали не мне , извиняюсь , а можно и на мой вопрос дать такие же развернутые ответы ? Цитата
Tatiana KDGest Опубликовано: 22 февраля 2012 Автор Жалоба Опубликовано: 22 февраля 2012 Забыла добавить: в здание 4 лифта и есть автономная система электроснабжения на случай аварий. Цитата
Tatiana KDGest Опубликовано: 22 февраля 2012 Автор Жалоба Опубликовано: 22 февраля 2012 На момент публикации объявления оставались только нормальные квартиры-этот Пентхаус был зарезервирован с мая прошлого года, но у покупателей не получилось с финансированием и его заново поставили в продажу. Так, что fortik Вас никто не обманывал и я ответила в основном на Ваши вопросы. Единственный не Ваш был про метраж отInteresting. Цитата
fortik Опубликовано: 22 февраля 2012 Жалоба Опубликовано: 22 февраля 2012 я уже извинялся и еще раз извинюсь , я говорил совсем о другом объекте , уже вынес это в отдельную тему , жду ответов там , мы не поняли друг друга просто , если можно пусть удалят мои посты из этой темы , я создал свою с вопросами к Вам Цитата
Tatiana KDGest Опубликовано: 22 февраля 2012 Автор Жалоба Опубликовано: 22 февраля 2012 я уже извинялся и еще раз извинюсь , я говорил совсем о другом объекте , уже вынес это в отдельную тему , жду ответов там , мы не поняли друг друга просто , если можно пусть удалят мои посты из этой темы , я создал свою с вопросами к Вам Это я извиняюсь - ответила не посмотрев ссылку Цитата
banned Опубликовано: 28 февраля 2012 Жалоба Опубликовано: 28 февраля 2012 Добрый день! Да ,это новостройка, продается напрямую строительной компанией. Жилой площади 108м2 и 186м2 террасы. Расположение можете посмотреть в Google Maps, по адресу:Vía Parque, Benidorm и от этого месте наверх до гольф клуба. Квота жилищного комплекса составит, где-то 70-80 евро в месяц. Комплекс полностью закончен. Заранее отвечаю по резерву и покупке. Резерв 6 000 евро, кредит 225 000 евро, своих понадобится 42 500 евро( 10% стоимости+ 4% НДС+ 3% оформление). Ежемесячная квота по кредиту на 35 лет составит 962,79 евро в месяц. а разве резерв не ограничен законом испании до 3000 евро? Цитата
Гость Firebird Опубликовано: 28 февраля 2012 Жалоба Опубликовано: 28 февраля 2012 а разве резерв не ограничен законом испании до 3000 евро? Ограничен Но ведь мало кто знает из нас об этом? Вот народ и пользуется нашим правовым нигилизмом Цитата
Anderson Опубликовано: 28 февраля 2012 Жалоба Опубликовано: 28 февраля 2012 Firebird, Законом сумма предоплаты не ограничена, исправляйте правовой нигилизм или приводите ссылки на конкретный закон (что кстати является правилом форума). Максимум, что советуют адвокатские конторы: Una vez que haya encontrado un inmueble que desean adquirir, es esencial que firme un contrato de reserva con el vendedor, ratificándolo con el pago de un señal de reserva de entre 3.000 € y 6.000 €. Este contrato le asegura que el inmueble sale del mercado, ofreciéndole la opción de comprarlo. 1 Цитата
Tatiana KDGest Опубликовано: 2 марта 2012 Автор Жалоба Опубликовано: 2 марта 2012 Добрый день СОЛОМБАЛКА, извините,что задержалась с ответом по залоговой сумме. Я консультировалась с несколькими юристами и нотариусами. Информацию я получила ту же, что и Anderson. А на практике каждый банк или строительная компания называет свою сумму залога. На пример: САМ просит 10%; Популяр-3000; застройщики от 6000 до 30%. В общем каждый ставит сумму интересную ему, но всегда можно торговаться. И всегда присутствует пункт о возврате залоговой суммы, например в случае отказа в кредите банком, а в последнее время вообще прописано, что клиент имеет право на разрыв контракта с возвратом залоговой суммы в полном размере по своему желанию. 2 Цитата
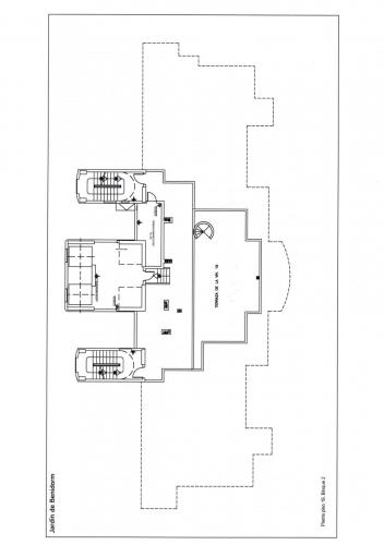
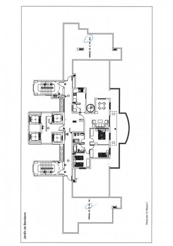
NAD Опубликовано: 3 марта 2012 Жалоба Опубликовано: 3 марта 2012 Добрый день, А поэтажный план можно выложить и фотографии пентхауса? Цитата
Tatiana KDGest Опубликовано: 5 марта 2012 Автор Жалоба Опубликовано: 5 марта 2012 Добрый день, А поэтажный план можно выложить и фотографии пентхауса? Вечер добрый NAD, планы получу сегодня вечером или завтра утром и сразу повешу ,а фото постараюсь сделать завтра- послезавтра. Цитата
Tatiana KDGest Опубликовано: 9 марта 2012 Автор Жалоба Опубликовано: 9 марта 2012 Добрый день, А поэтажный план можно выложить и фотографии пентхауса? Добрый день! Это фото и планы, которые Вы просили. Если останутся вопросы буду рада ответить на них. 3 Цитата
NAD Опубликовано: 9 марта 2012 Жалоба Опубликовано: 9 марта 2012 Большое спасибо. Будем изучать. Цитата
Артур Опубликовано: 9 мая 2012 Жалоба Опубликовано: 9 мая 2012 Добрый день! Да ,это новостройка, продается напрямую строительной компанией. Жилой площади 108м2 и 186м2 террасы. Расположение можете посмотреть в Google Maps, по адресу:Vía Parque, Benidorm и от этого месте наверх до гольф клуба. Квота жилищного комплекса составит, где-то 70-80 евро в месяц. Комплекс полностью закончен. Заранее отвечаю по резерву и покупке. Резерв 6 000 евро, кредит 225 000 евро, своих понадобится 42 500 евро( 10% стоимости+ 4% НДС+ 3% оформление). Ежемесячная квота по кредиту на 35 лет составит 962,79 евро в месяц. Здравствуйте! Не знаю, как обратиться к Вам по имени. Объект заинтересовал ( если он еще в продаже), прошу уточнить площадь объекта. В верху Вы пишите о 250 метрах. Здесь - 108+186= 294 . Далее, вы выложили схему и фотографии. Если не трудно, пришлите метраж по комнатам (интересует жилая, ). Следующий вопрос по ипотеке. Если условия реальные ( я не резидент), какие доки потребуются во время моего визита в Испанию? В каком банке и под какой процент предполагается ипотека? Можно написать мне на почту: ( arturtuman@mail.ru ). И еще, на Вашем сайте я этот объект не обнаружил. Можете прислать подобные предложения (интересуют не дома или квартиры, а именно пентхаус и охраняемая территория. Спасибо! 1 Цитата
fortik Опубликовано: 9 мая 2012 Жалоба Опубликовано: 9 мая 2012 давайте я немного помогу девочкам про точный метраж и прочее не могу ничего сказать , сам смотрел его , вот несколько фотографий , правда сам пентхаус я не фотографировал (боюсь высоты , поэтому не рассматривал его для покупки себе ) но вот виды с него , как он выглядит снаружи и детская площадка , охраняемая территория впечатляет , огромная просто , ухоженная , хоть и Бенидорм , но место тихое , мы еще постояли посмеялись с девушкой которая там проводит показы , что если б этот пентхаус был не на 19м , а на 5м этаже , то я бы его купил , да кстати , там не просто терраса , она там в двух уровнях , еще там панорамные лифты , в общем по делу Вам девочки расскажут , а о впечатлениях могу и я , если интересно , и еще , он один на площадку , соседей не будет 12 Цитата
Артур Опубликовано: 9 мая 2012 Жалоба Опубликовано: 9 мая 2012 Спасибо! Буду ждать ответа "девочек". Пентхаус - на то и пентхаус, что бы соседей не было. 1 Цитата
fortik Опубликовано: 9 мая 2012 Жалоба Опубликовано: 9 мая 2012 ну не знаю , есть пентхаусы 2 на площадке , есть 3 , а тут он практически всю крышу занимает , техническая часть еще только есть 3 Цитата
Рекомендованные сообщения
Присоединяйтесь к обсуждению
Вы можете опубликовать сообщение сейчас, а зарегистрироваться позже. Если у вас есть аккаунт, войдите в него для написания от своего имени.